Sử dụng bộ cộng tín hiệu chỉnh góc cho hệ thống cân điện tử
Các hệ thống cân điện tử khi được đưa vào sử dụng cần đảm bảo các góc cân cho ra kế quả đồng nhất, không bị lệch góc dẫn đến số liệu sai lệch. Do đó, việc chỉnh góc cân là điều cần thiết. Trong bài viết dưới đây, Tân Phát sẽ giới thiệu đến các bạn cách hiệu chỉnh góc cân điện tử bằng cách sử dụng bộ cộng tín hiệu (hộp nối tín hiệu loadcelll).
Lắp đặt bộ cộng tín hiệu
- Bộ cộng tín hiệu hay còn họi là hộp nối tín hiệu loadcell (junction box) là thiết bị được sử dụng trong rất nhiều các loại cân điện tử như cân sàn, cân bồn, cân ô tô, cân xe tải,…Kiểu chỉnh nguồn sở hữu ưu thế chỉnh nhanh nhưng nếu cân có sai số góc lớn thì bạn nên sử dụng loại hộp nối chỉnh tín hiệu.
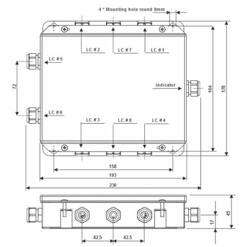
- Hộp nối JXHG 4, 6, 8 cổng cho phép kết nối tương ứng 4, 6, 8 cảm biến loadcell. Các loại hộp nối model S (Analog) nhiều cổng, một số ống nối cáp nếu không sử dụng đến cần phải được đóng lại bằng các phích cắm thích hợp để tránh bụi và các tác nhân bên ngoài xâm nhập, gây ảnh hưởng đến khả năng hoạt động của thiết bị.
- Để đảm bảo độ ổn định, nên kết nối vỏ hộp nối tiếp đất cẩn thận.
- Với hộp nối chỉnh tín hiệu, vòng hiệu chỉnh của biến trở có thể lên đến 20 vòng xoay (tăng khả năng tinh chỉnh mịn cho hệ thống cân).
- Vùng nhiệt độ hoạt động của hộp nối là -40°C đến 85°C.

Hộp nối tín hiệu loadcell 8 đầu vào, 1 đầu ra do Tân Phát cung cấp
Gắn chặt bộ cộng tín hiệu vào khung cân
Hộp nối tín hiệu loadcell có thể được gắn kết cố định thông qua 4 lỗ gắn (đường kính 8mm). Các cảm biến lực được sử dụng nên có cùng model sản phẩm, cùng tải trọng tối đa và có đầu ra định mức như nhau (mV/V).
Khi lắp đặt hộp nối, bạn hãy chắc chắn rằng vỏ bọc chống nhiễu của cảm biến lực luôn được nối vỏ và toàn bộ hộp nối đã được gắn chặt vào khung cân, tránh tối đa việc bị ngâm nước hoặc các tác động gây ẩm ướt.

Sơ đồ lắp đặt hộp nối tín hiệu loadcell
Kết nối điện tử
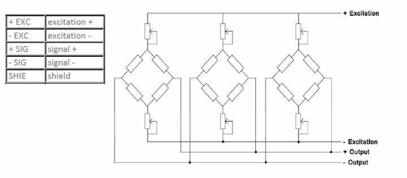
Tháo nắp và nối các cáp tín hiệu của cảm biến lực vào các dải kết nối (Domino) tương ứng của bảng mạch và đầu ra bảng mạch (đánh dấu bằng OUT/INDICATOR) đến đầu cân hay bộ chỉ thị. Mỗi dải kết nối (Domino) đều có ký hiệu tên, nên chú ý kỹ để tránh việc đấu dây nhầm. Hãy chắc chắn rằng tất cả các đầu nối được siết chặt và cáp không bị đứt.

Hệ thống ký hiệu kết nối hộp nối với loadcell và đầu cân hiển thị
Hiệu chuẩn và cài đặt
- Sau khi tất cả các cảm biến lực đã được kết nối hoàn chỉnh và cẩn thận vào đầu cân, hãy tiến hành khởi động đầu cân.
- Hãy kiểm tra thang đo/tải tối đa, vạch chia được cài đặt trên đầu cân, độ lặp lại của cân và phải xử lý xong bất kỳ vấn đề lỗi nào xuất hiện, trước khi tiến hành chỉnh góc.
Hiệu chỉnh góc cân điện tử
Các biến trở đã được cân chỉnh trung tính trong quá trình sản xuất. Vì vậy không có cần phải điều chỉnh chúng trước khi hiệu chuẩn.
Các bước hiệu chỉnh góc cân như sau:
- Bước 1: Cho tải đi lần lượt từng góc và ghi lại giá trị trọng lượng hiển thị trên đầu cân.
- Bước 2: Tính giá trị trung bình của tất cả các phép đo, lấy giá trị trung bình làm giá trị tham khảo.
- Bước 3: Cho tải đi lại từng góc và điều chỉnh các biến trở lên/xuống phù hợp, để giá trị trọng lượng hiển thị trên đầu cân giống như giá trị tham khảo đã được tính toán.
- Bước 4: Lặp lại các bước từ 2-3 cho đến khi các giá trị góc đều nằm trong phạm vi lỗi được cho phép.
Xử lý các sự cố phát sinh
Giá trị đọc trên đầu cân dường như không chính xác
- Kiểm tra giá trị không tải của cân có về Zero không?
- Đảm bảo rằng vật đang được cân phải nằm trọn bộ trong sàn cân.
Các góc cân có giá trị không bằng nhau
- Lặp lại quy trình thiết lập cho cân và tiến hành điều chỉnh góc.
- Kiểm tra các cảm biến lực có hỏng gì không?
Số cân bị trôi
- Kiểm tra hộp nối có bị vô nước hay không.
- Kiểm tra các cảm biến lực có ổn định hay cáp có bị đứt không?
- Ngắt kết nối tứng cảm biến lực từ hộp nối. Nếu số trên đầu cân trở nên ổn định, thì cảm biến lực bị ngắt kết nối có thể là bị lỗi.
Nên sử dụng một bộ mô phỏng cảm biến lực hoặc cảm biến lực để xác định rằng đầu cân hay bộ chỉ thị số đang sử dụng hoạt động ổn định và chính xác.
Nếu có bất kỳ thắc mắc gì, hay quý khách có nhu cầu mua các thiết bị như loadcell, bộ cộng tín hiệu, đầu cân hiển thị hay các loại cân điện tử, cân bàn, cân sàn, cân ô tô, vui lòng liên hệ tới Tân Phát qua hotline: 0963 966 866 để được TƯ VẤN và BÁO GIÁ chi tiết.
CÔNG TY CỔ PHẦN CÔNG NGHỆ TỰ ĐỘNG TÂN PHÁT
- Địa chỉ: VT32, LK4, KĐT Đại Thanh, Tả Thanh Oai, Thanh Trì, Hà Nội
- Hotline: 0963 966 866
- Email: tpautotech01@gmail.com